C’est dans un quartier de Bagnolet, banlieue Est parisienne, là où la ville n’est plus aussi dense, plus aussi haute, et surtout plus aussi organisée. Les maisons, les immeubles se frôlent. Les pignons des uns et des autres sont brutalement exposés au regard des passants. Il y a des vides, il y a des changements d’échelles brusquement. C’est le charme de ces quartiers sans prétentions, encore assez proches du centre-ville pour que l’on y trouve une densité source d’inspiration. Pas encore de pavillons isolés. La ville se disloque petit à petit en partant du centre.
Ces quartiers sont pris d’assaut par des familles en quête d’espace et de calme, de bout de verdure. C’est une petite maison des années 30 construite à même le sol, sans fondement avec des parpaings de mâchefer, ces déchets de houilles utilisés dans les murs des maisons. Un assemblage de ce qui était disponible et pourtant, la maison possède un charme aujourd’hui, quand on la compare à nos tristes pavillons caractéristiques de l’étalement urbain. Finalement, il suffit de peu de choses, un beau parquet en chêne, une cheminée en marbre un peu désuète, un mur de carreaux ciment. Un accès un peu tordu entre d’autres maisons, et le soleil.
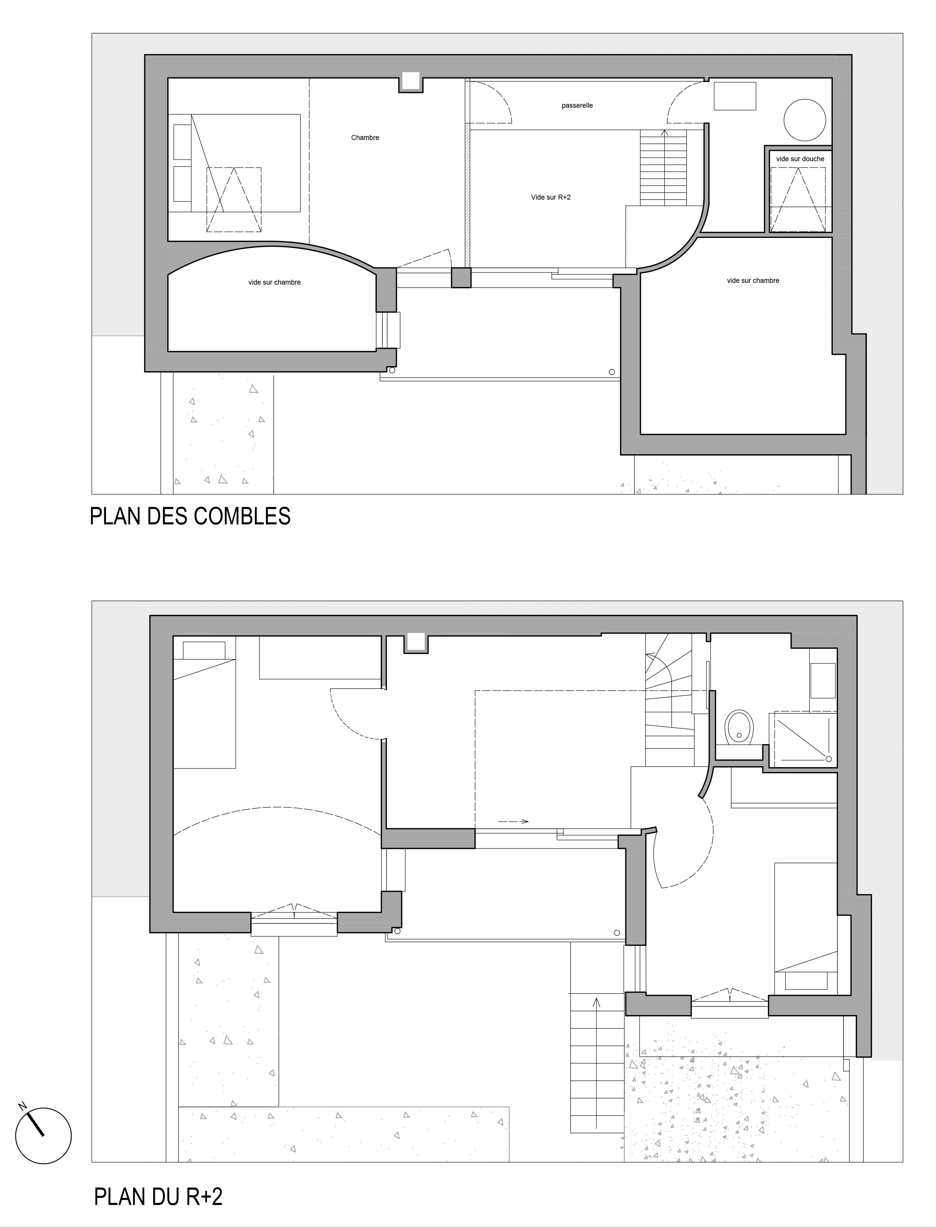
Mais la maison est petite, il est décidé d’ajouter un étage en hauteur. La construction doit être légère et écologique. L’accès à la maison ne permet pas d’apporter des moyens de levage. L’étage ajouté est en ossature bois. Tous les matériaux intérieurs sont écologiques ou récupérés. Parquet en chêne, sol en caoutchouc, cloisons en fermacell, peinture minérales Keim. Des panneaux solaires sont installés sur le toit pour l’eau chaude. La partie existante de la maison sera isolée par l’extérieur et enduit.
La maison est en hauteur, on y grimpe. Plus on monte, et plus la vue se dégage. D’en haut, on peut voir l'alignement des parcelles, la juxtaposition des constructions. On monte en s’enroulant le long du saule tortueux, cet arbre vigoureux du jardin qui protège des regards, du soleil, et donne la sensation de vivre dans un arbre.
En haut donc, ce sont les chambres. Il y a aussi cet endroit au carrefour des 3 chambres qui est une pièce supplémentaire en double hauteur dotée de la plus grande et la plus belle fenêtre.
