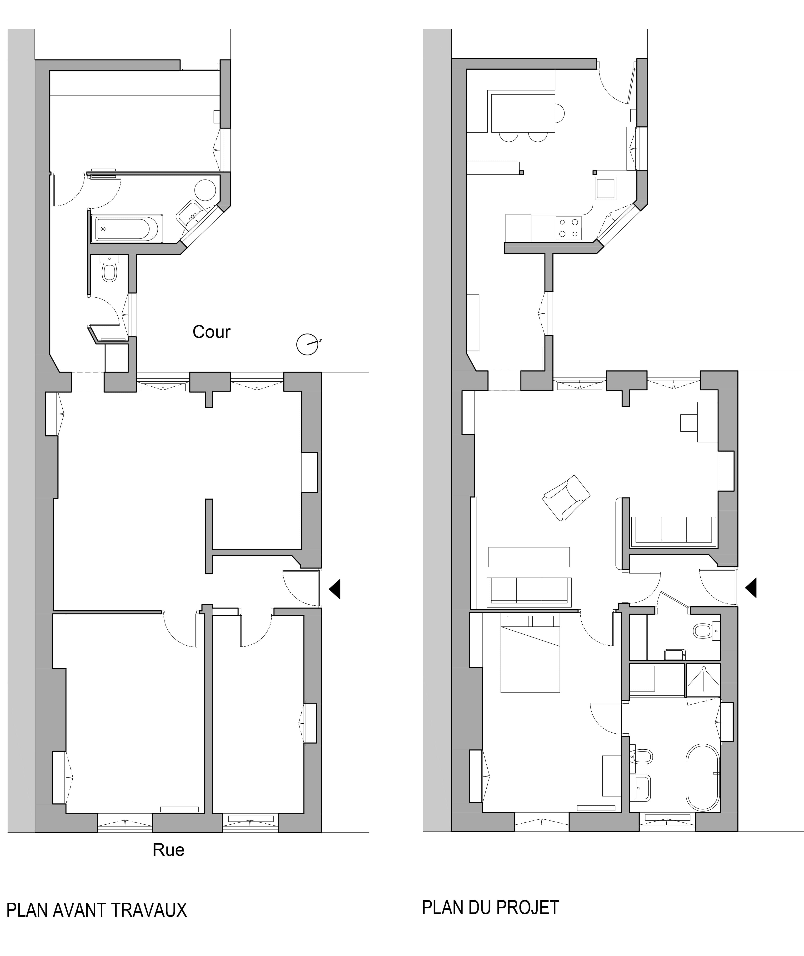
Au cœur du quartier latin à Paris, ce bel appartement à rez-de-chaussée d’un immeuble du 18e siècle était en très mauvais état. Le projet a consisté à simplifier au maximum les espaces très sombres et découpés pour retrouver un plan fluide et plus lumineux. Le sol a été remplacé par une pierre de bourgogne claire qui prolonge presque le sol minéral de la cour et du porche de l’immeuble. Les murs sont clairs et neutres afin de permettre à la propriétaire collectionneuse d’y disposer ses objets.
