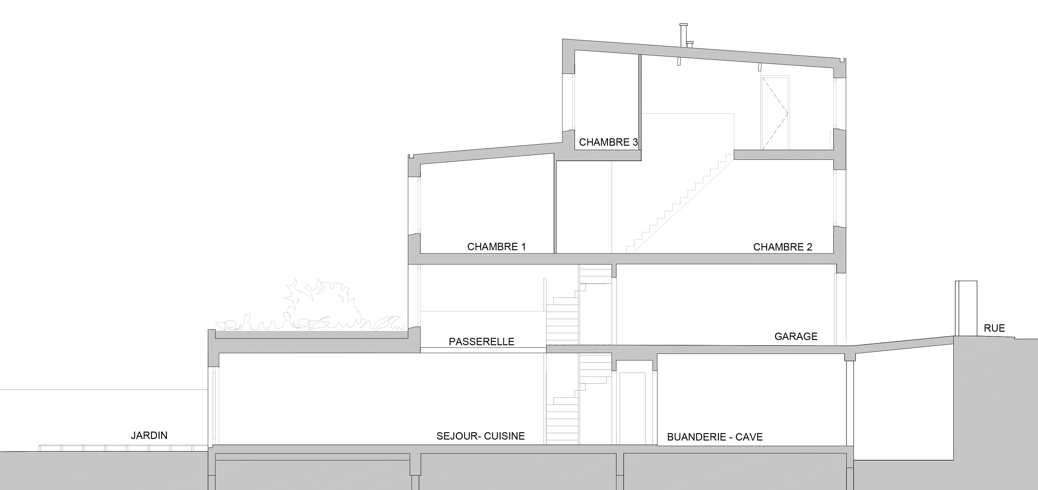
Le terrain d’une largeur de 4m sur rue et une longueur de 48m se trouve à 3,4 m en deçà du niveau de la rue. Les maisons alentours, très étroites également sont toutes en retrait d’environ 3m de la rue avec un long jardin arrière, de sorte qu’un cœur d’ilot très vert et dégagé se dévoile côté jardin. Nous avons travaillé pour garder cette caractéristique propre au site.
La réglementation très contraignante, imposait deux places de stationnement et une longueur de pignon maximale de 12m. Il a donc fallu la contourner pour pouvoir construire. Le rez-de-jardin excède les 12m de longueur mais reste dans la hauteur des murs de clôture du jardin. Le projet est conçu autour d’un espace central en double hauteur entre rez-de-chaussée et rez-de-jardin en contrebas. Ainsi le rez-de-jardin très long peut bénéficier de lumière naturelle en son centre. Le travail a essentiellement porté sur le parcours visuel depuis l’entrée en fond de garage qui offre une perspective sur une terrasse plantée en toiture du rez-de-jardin, au dessus du vide central, de manière à recréer un sol végétal au niveau de la rue.
Les deux niveaux supérieurs sont simples, avec une circulation centrale et des chambres sur rue et jardin. Le tout a été construit en ossature bois, isolant en laine de bois.
